Neil Group Subdivision
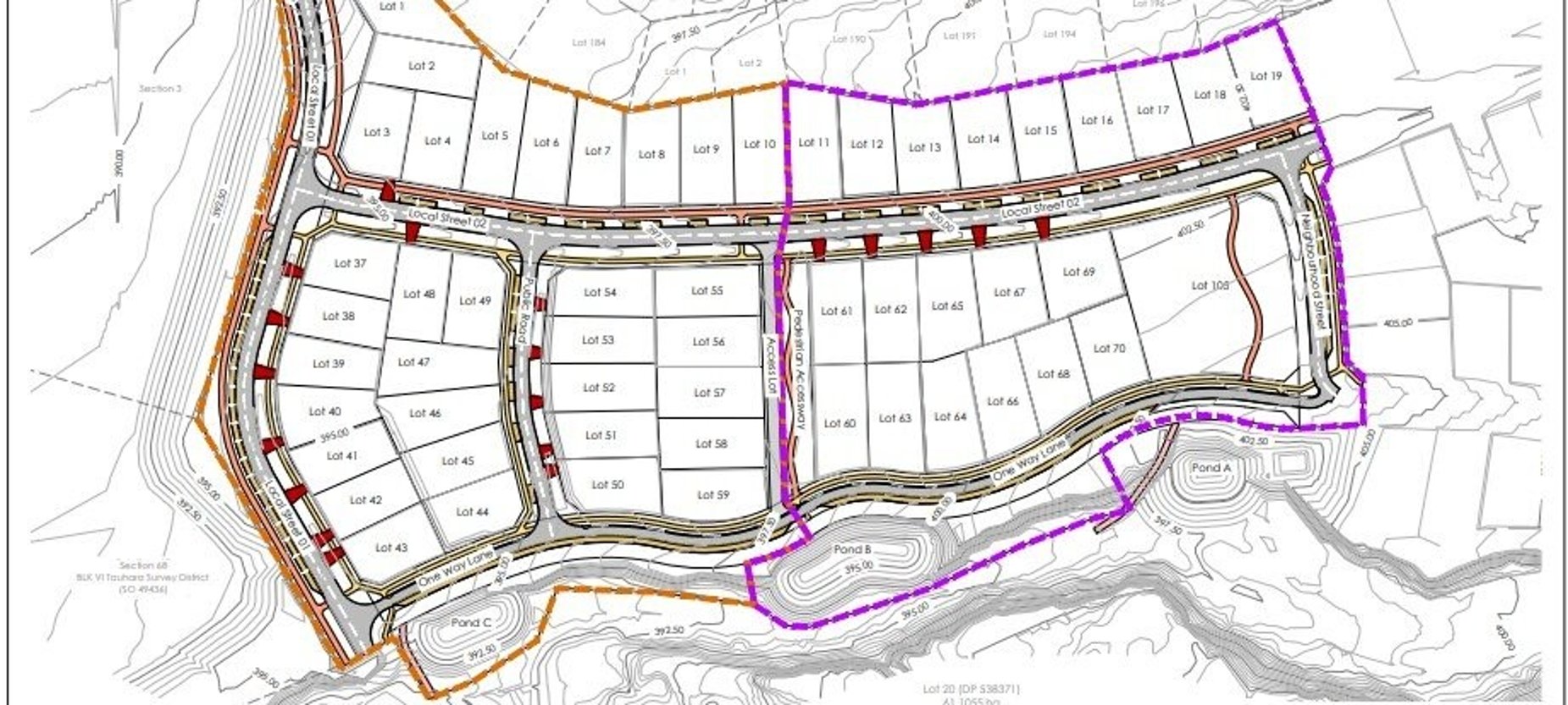
Mātanga Projects is providing site supervision and MSQA for Advance Civil Ltd for the Neil Group Subdivision located off Richmond Avenue here in Taupo. The Neil Group Subdivision includes 54 lots for stages 1 & 2.
Contact
Mātanga Projects
admin@matangaprojects.co.nz
027 5570 006
108 Tūwharetoa Street, Taupō, 3330
Join us! Office sublease available




